Alle | Verwaltung | Bildung + Forschung | Industrie + Verkehr | Brandschutz | Denkmal | Wohnen | Gesundheit | Gastro | Projektsteuerung




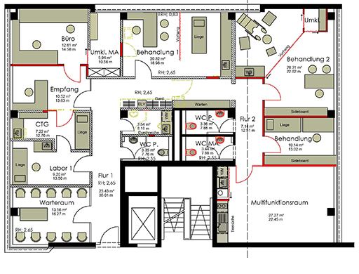
Umbau einer gynäkologischer Praxis, Stuttgart, Deutschland
LEISTUNGSUMFANG:
Entwurfs- und Ausführungsplanung, Kostenschätzung, Ausschreibung, Bauleitung, LP1-8 nach HOAI
BAUHERR:
Dr. Uta Bischof, Stuttgart, Deutschland
PLANUNG:
Mai - Juli 2015
AUSFÜHRUNGSZEIT:
August - Oktober 2015
Weitere Projekte: