Alle | Verwaltung | Bildung + Forschung | Industrie + Verkehr | Brandschutz | Denkmal | Wohnen | Gesundheit | Gastro | Projektsteuerung


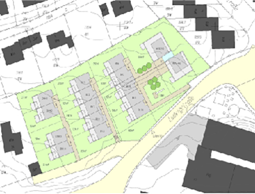
Projektentwicklung, Wohnbebauungskonzepte, Änderung des Bebauungsplans, Leinfelden-Echterdingen, Musberg, Deutschland
LEISTUNGSUMFANG:
Entwurfsplanung, Kostenschätzung, Änderung des Bebauungsplans
BAUHERR:
Volksbank Böblingen, Deutschland
BAUKOSTEN: 10 Mio €
AUSFÜHRUNGSZEIT:
2007 - 2008